Renovatie & Vervangingsbouw
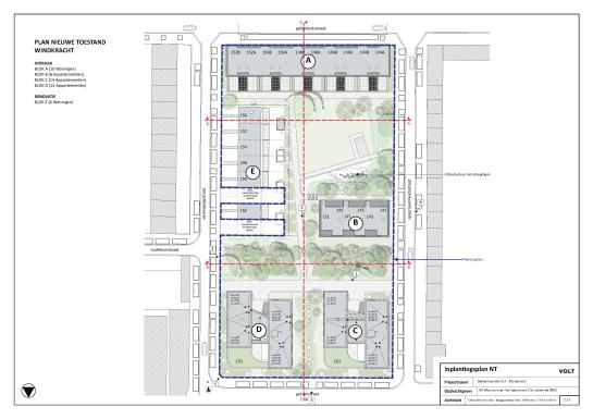
- Wat komt op deze site? In het woonproject werden in vorige fase de woningen in de Spaarzaamheidstraat, de Golvenstraat en één blok in de Verenigingstraat afgebroken. Nu volgt nog de sloop van de woningen in de Gelijkheidstraat. Deze woningen maken plaats voor 10 woningen (zie plan - blok A), 35 appartementen (zie plan - blok B-C-D) en extra groenzones. De zes rijwoningen in de Verenigingstraat (nummers 150-152-154-156-158 en 162) worden gerenoveerd (zie plan - blok E). Centraal in het woonproject komt een grote groene zone, met bosheuvels, bomen en een waterpartij. Deze groenzone zal toegankelijk zijn vanuit alle omliggende straten, via verschillende doorsteken en uitnodigende paden. Een ideale plek voor de buurt om elkaar te ontmoeten.
Wanneer is start en einde van de werkzaamheden voorzien?
De aannemer RECON Bouw start vanaf 22 april 2025 met de werkzaamheden. Mogelijks wordt de werfzone al vooraf ingericht. Met de te slopen woningen in de Verenigingstraat werd al gestart. Als alles volgens planning verloopt, zijn de werken vermoedelijk eind 2027 afgerond.
- Welke verkeersmaatregelen gelden er gedurende de werken? Als er tijdens de werkzaamheden verkeersmaatregelen nodig zijn, zullen deze ter plaatse duidelijk gesignaleerd worden.
Communicatie
- Bewonersbrief start bouw Windkracht - april 2025 (1.19 MB) "pdf"
- Bewonersbrief start Sloop Windkracht - januari 2024 (585.72 KB) "pdf"
Contact
Heb je vragen over de werf? Neem contact met ons op via windkracht@woonsprong.be of bel naar 059 70 53 26 (elke werkdag tussen 09.00 en 12.00 uur).
Plan en foto's van hoe het wordt